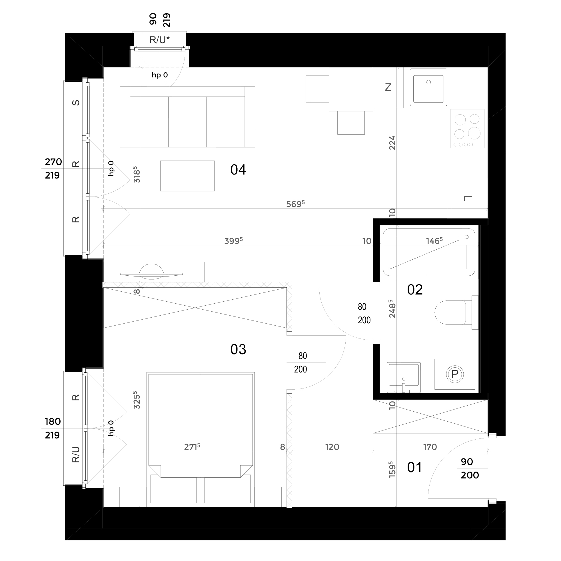
Mieszkanie 102/05

Sold
Area
35.72 m2
Floor
1
Rooms
2
557,232 PLN

15,600 PLN / m2