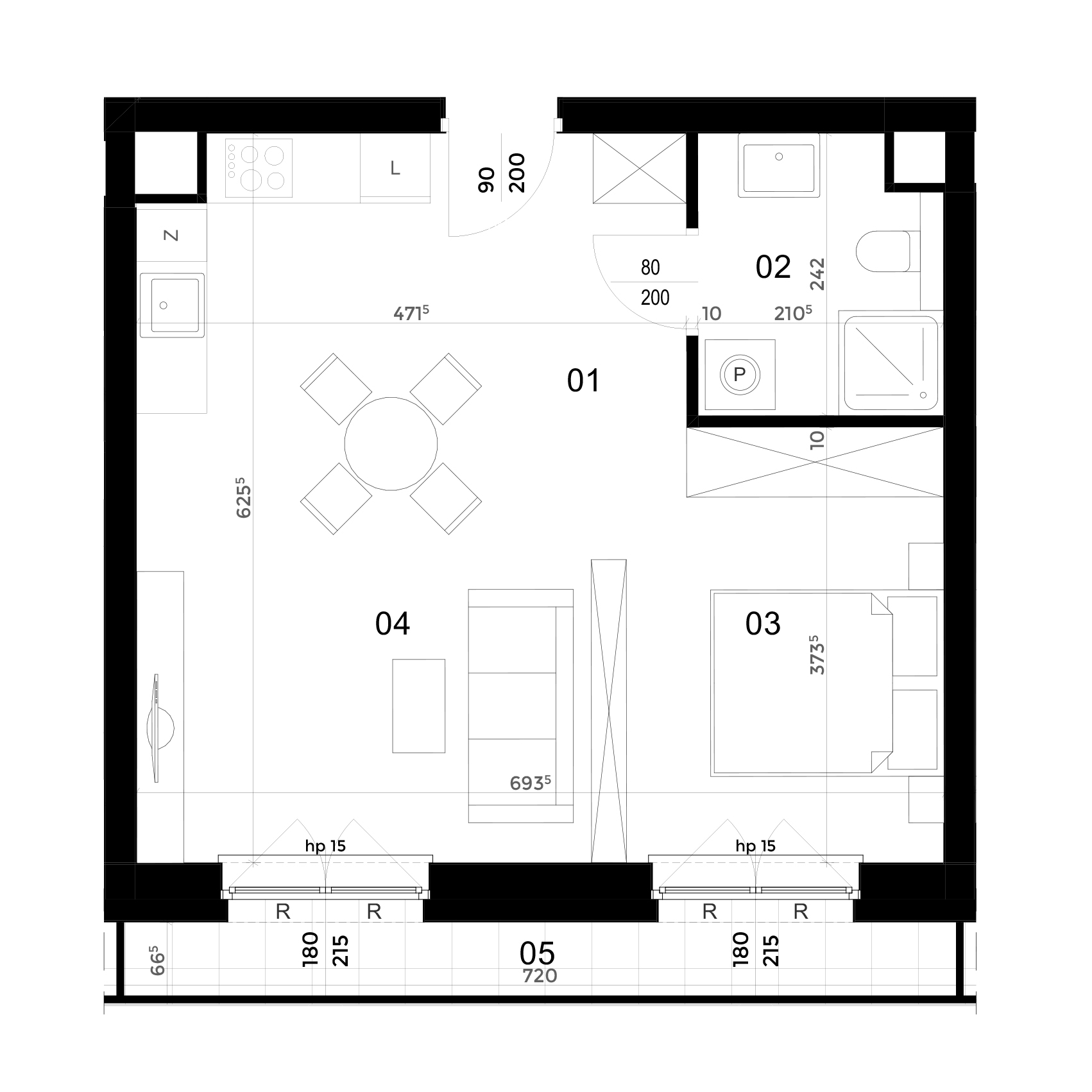
Mieszkanie 102/13
Sold
Area
42.21 m2
Floor
1
Rooms
1
Additionally
Deadline for delivery
II kw. 2026
673,250 PLN
15,950 PLN / m2
.png)