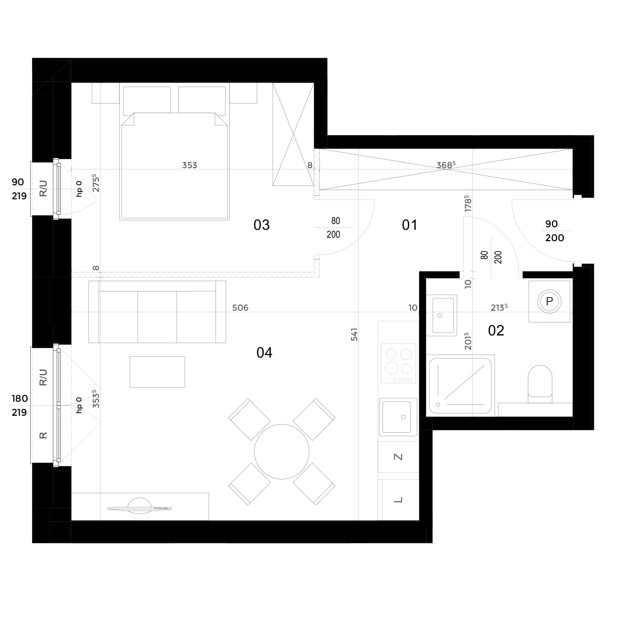
Mieszkanie 102/15

Sold
Area
38.63 m2
Floor
2
Rooms
2
594,902 PLN

15,400 PLN / m2