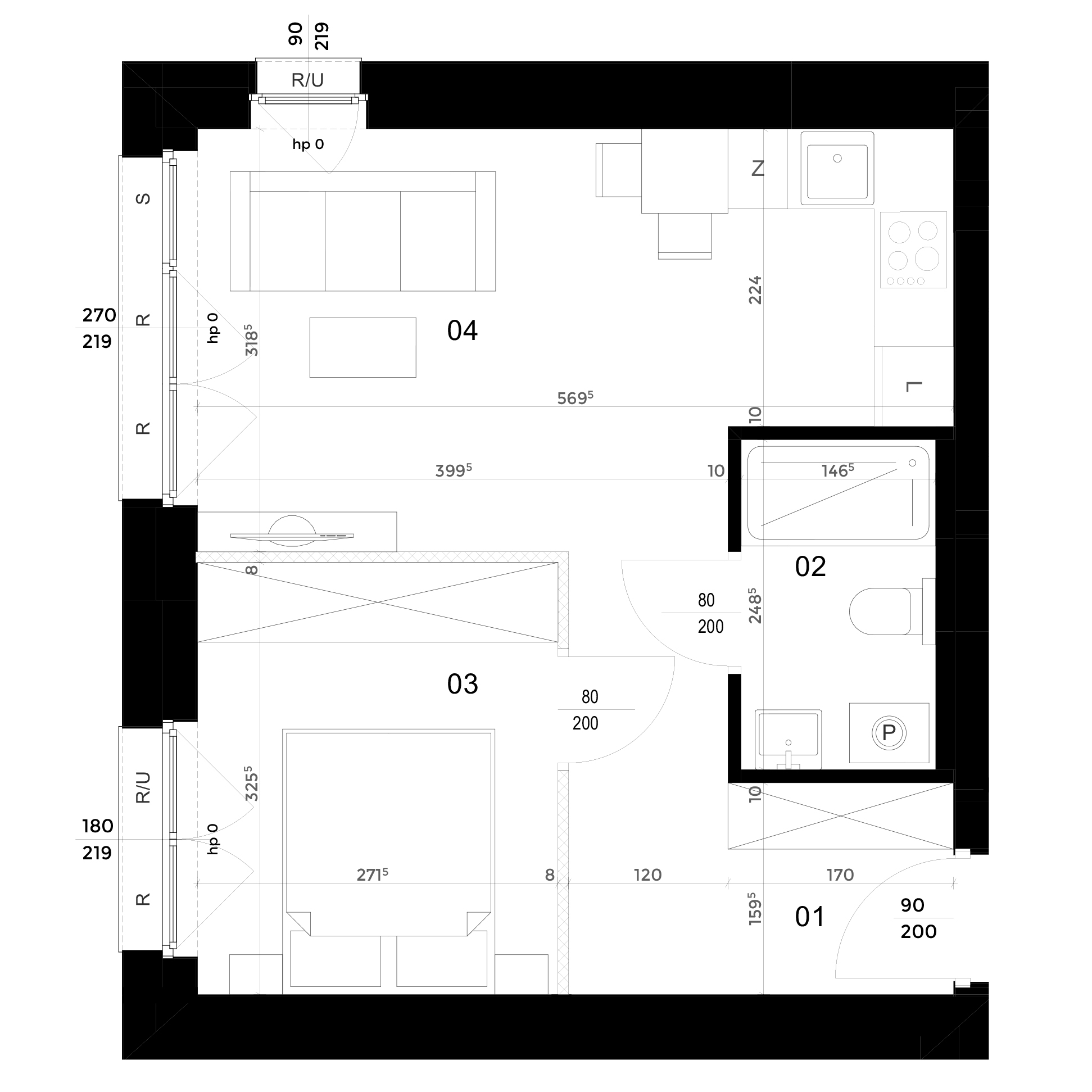
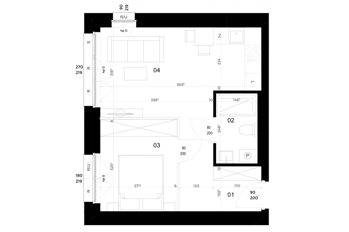
Mieszkanie 102/16

Sold
Area
35.72 m2
Floor
2
Rooms
2
571,520 PLN

16,000 PLN / m2