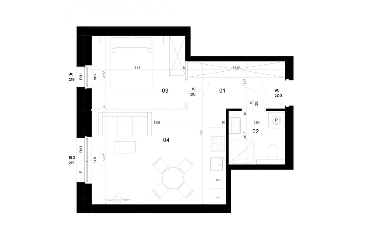
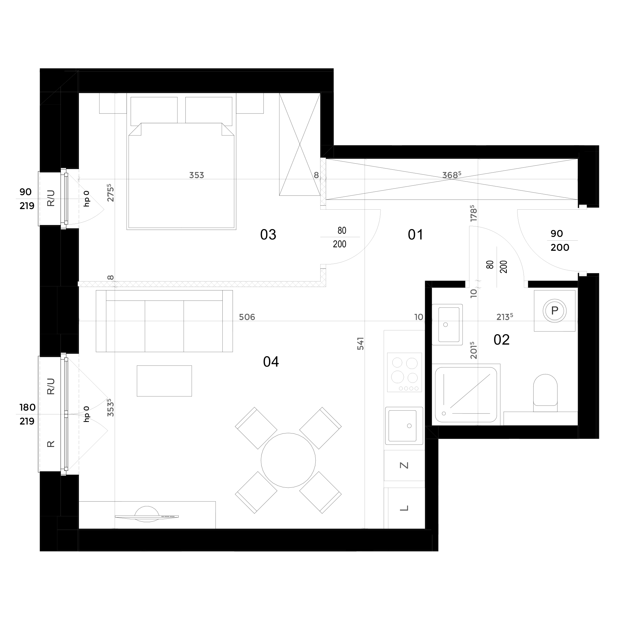
Mieszkanie 102/26

Sold
Area
38.63 m2
Floor
3
Rooms
2
633,532 PLN

16,400 PLN / m2