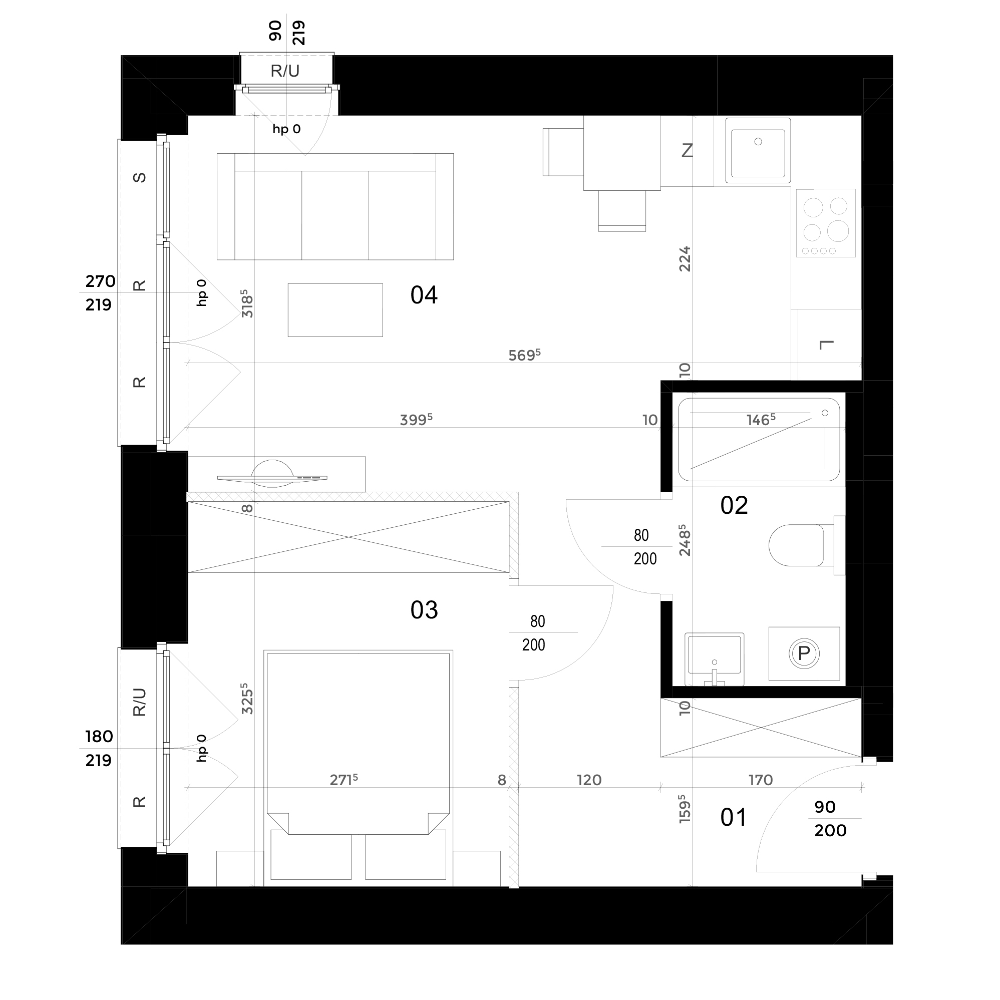
Mieszkanie 102/27

Sold
Area
35.72 m2
Floor
3
Rooms
2
600,096 PLN

16,800 PLN / m2