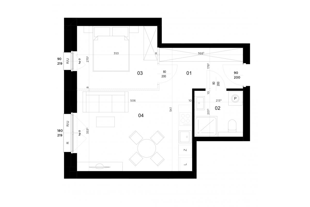
Mieszkanie 102/37

Sold
Area
38.63 m2
Floor
4
Rooms
2
672,162 PLN

17,400 PLN / m2