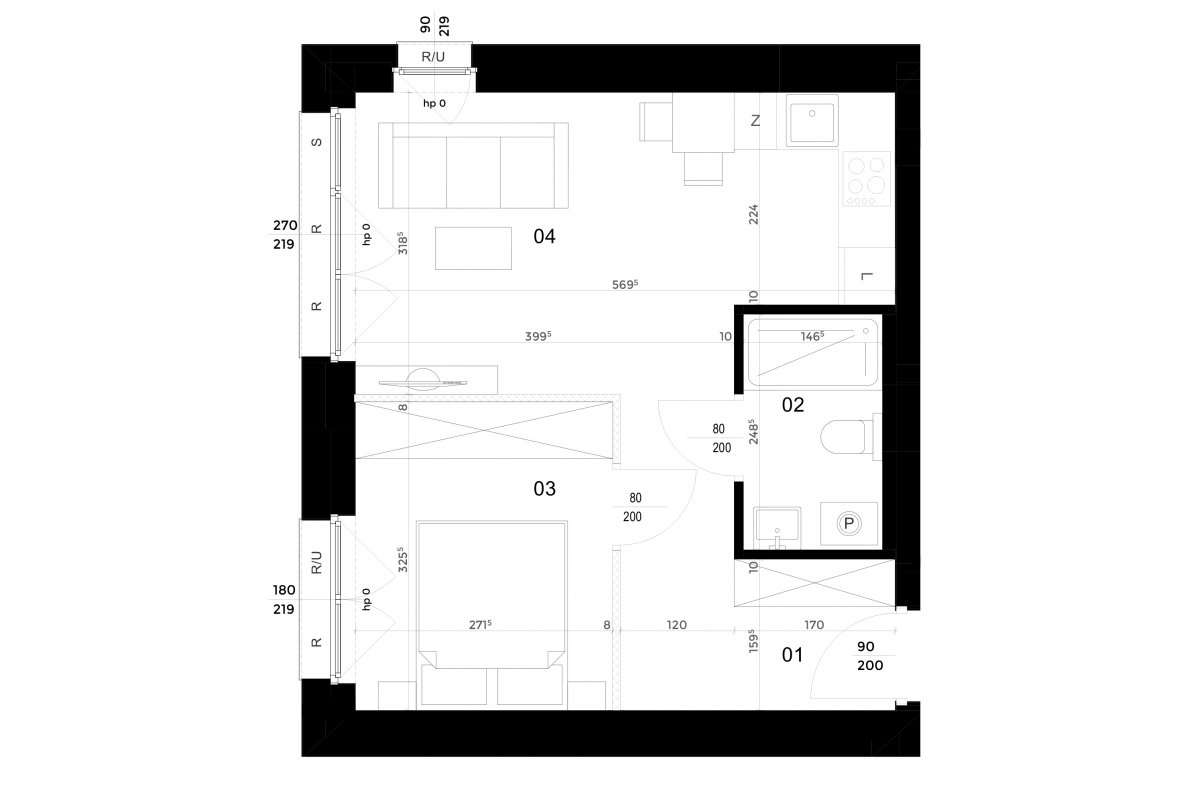
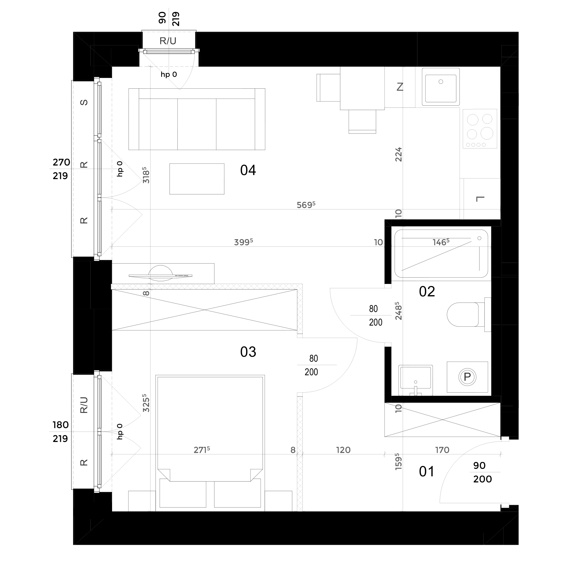
Mieszkanie 102/49

Sold
Area
35.72 m2
Floor
5
Rooms
2
667,964 PLN

18,700 PLN / m2