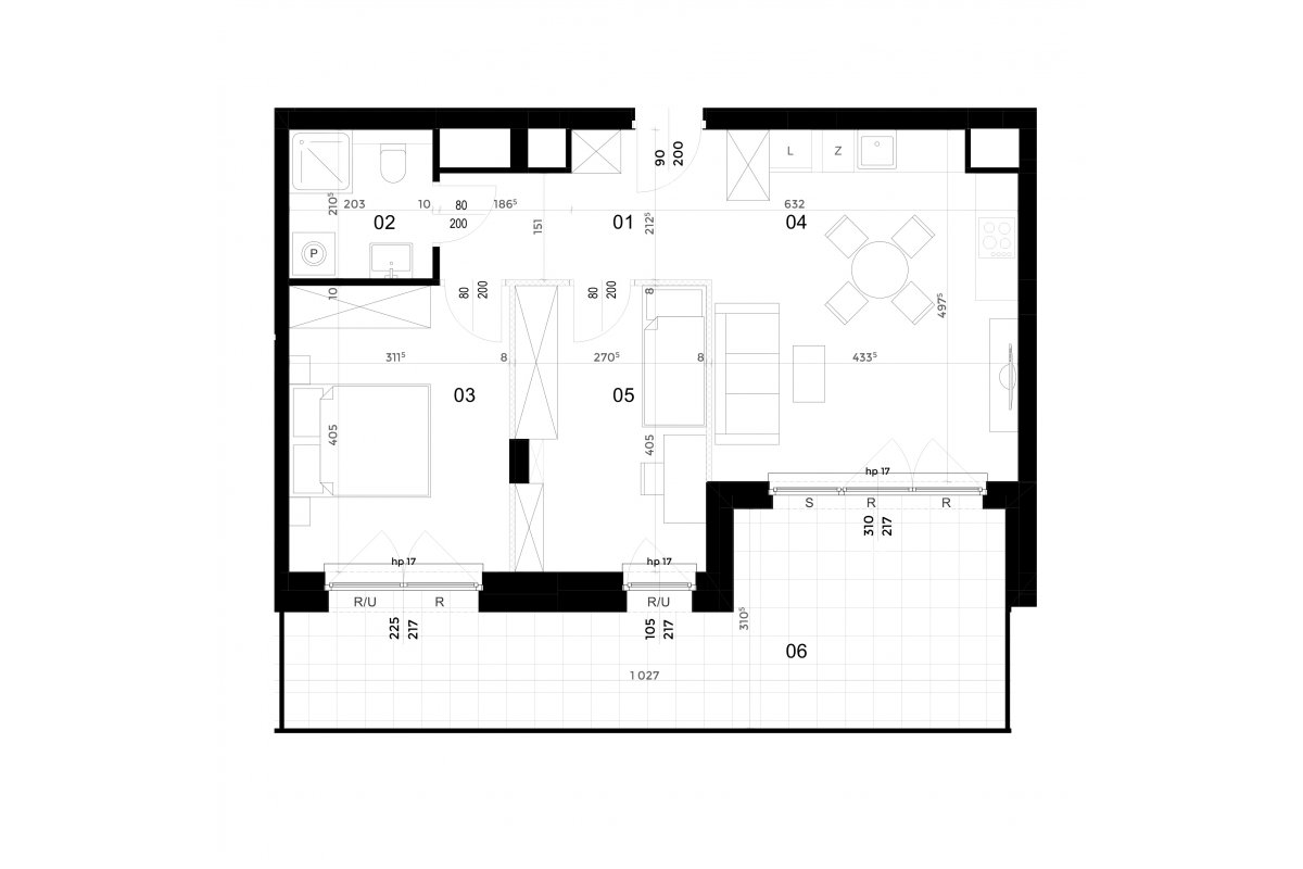
Mieszkanie 102/64
Sold
Area
55.86 m2
Floor
6
Rooms
2
Additionally
Deadline for delivery
II kw. 2026
1,128,372 PLN
20,200 PLN / m2
.png)